NEUE TECHNOLOGIE

NEUES HAUS PROJEKT

GTS 141 DE

S T A L F O R M A T O R

Einführungspreis: 110.000 EUR netto (130.900 inkl. 19% USt.) schlüsselfertig*


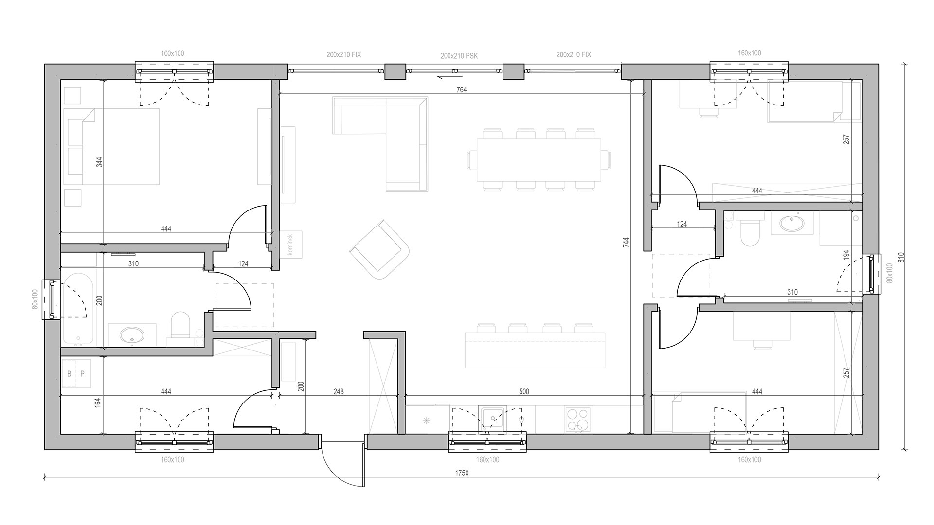
Abbildung dient nur zur Veranschaulichung


Nutzfläche: 186 m2

Bebauungsfläche: 141,75 m2

Boden / Wohnfläche: 120 m2

zusätzliche Dachbodenfläche: 66 m2

Dachneigung: 35°

Haushöhe: 6,44 m

Haus-Außenmaße: 17,50m x 8,10m

Salon / Wohnzimmer mit einer hohen Decke und 51 m2 Fläche

3x Schlafzimmer und 2x Badezimmer

Dachboden und HWR / Technikraum





Das Haus ist fertig von außen inkl. Außenputz, Dachverkleidung, Rinnen, Dacheinfassungen, Fenster und Außentür.

Von Innen sind alle Wasser- und Elektro-Installationen eingebaut.

Die Wände sowie Decken sind verspachtelt, geschliffen und weißgestrichen.

Durch seine spezielle Konstruktion verfügt das Haus über eine enorm starke Statik und ist sehr stark gedämmt.

Der Aufbau aller Wände von innen mit G-K + 15mm OSB Platten erlaubt überall das Aufhängen von schweren Schränken und Regalen (wie in der Küche).




Zum Aufbauen und Fertigstellen des Hauses benötigen wir fertige Bodenplatte (10 cm Dämmung)

und an den vorgegebenen Stellen die Hauanschlüsse (Wasser, Abwasser, Strom).

Der Kunde kann eine Luft-Wärme-Pumpe mit Wassertank und Steuerung seiner Wahl sowie ein zentrales Belüftungsgerät anschließen.

Die Rohrleitungen für die Bodenheizung und weitere Wasserleitungen sowie Kanäle (Rohre) für die mechanische Belüftung sind im Haus bereits eingebaut.


*Detallierte Beschreibung aller technischen Informationen und inklusiven Leistungen finden Sie unter folgendem Link:

Link zu den detalierten Infos